Buyers look for floor plans that give an accurate idea about the actual room which helps to sell properties more quickly and bring more inquiries that convert into sales. Not only the buyers need to see the high-quality images, but having a floor plan design makes a huge difference in the mindset of the buyers.

The floor plan provides an exact idea of various room sizes, storage space, measurements and interconnectivity between the rooms like the kitchen, garden, living room, bathroom, balcony, etc. We do both 2D and 3D floor plans as per the requirement of the client, providing the value plus high-quality design in detailing the total area measurements, floor size, names, and furniture layout plans. With advanced tools, we convert the plans into 2D or 3D floor plans in a high resolution that gives a unique feature to view and make the buyer decide whether it would fit their requirements.

Why choose us for drawing interior and exterior floor plans

  • We use latest softwares and expertise in architecture field for building floor plans.
  • Price + Quality : Unbeatable price deal without compromising the quality.
  • We offer 2D, 3D floor plan designs for exteriors and interiors.
  • We provide unlimited revisions until we deliver accurate floor plans for your buyers.

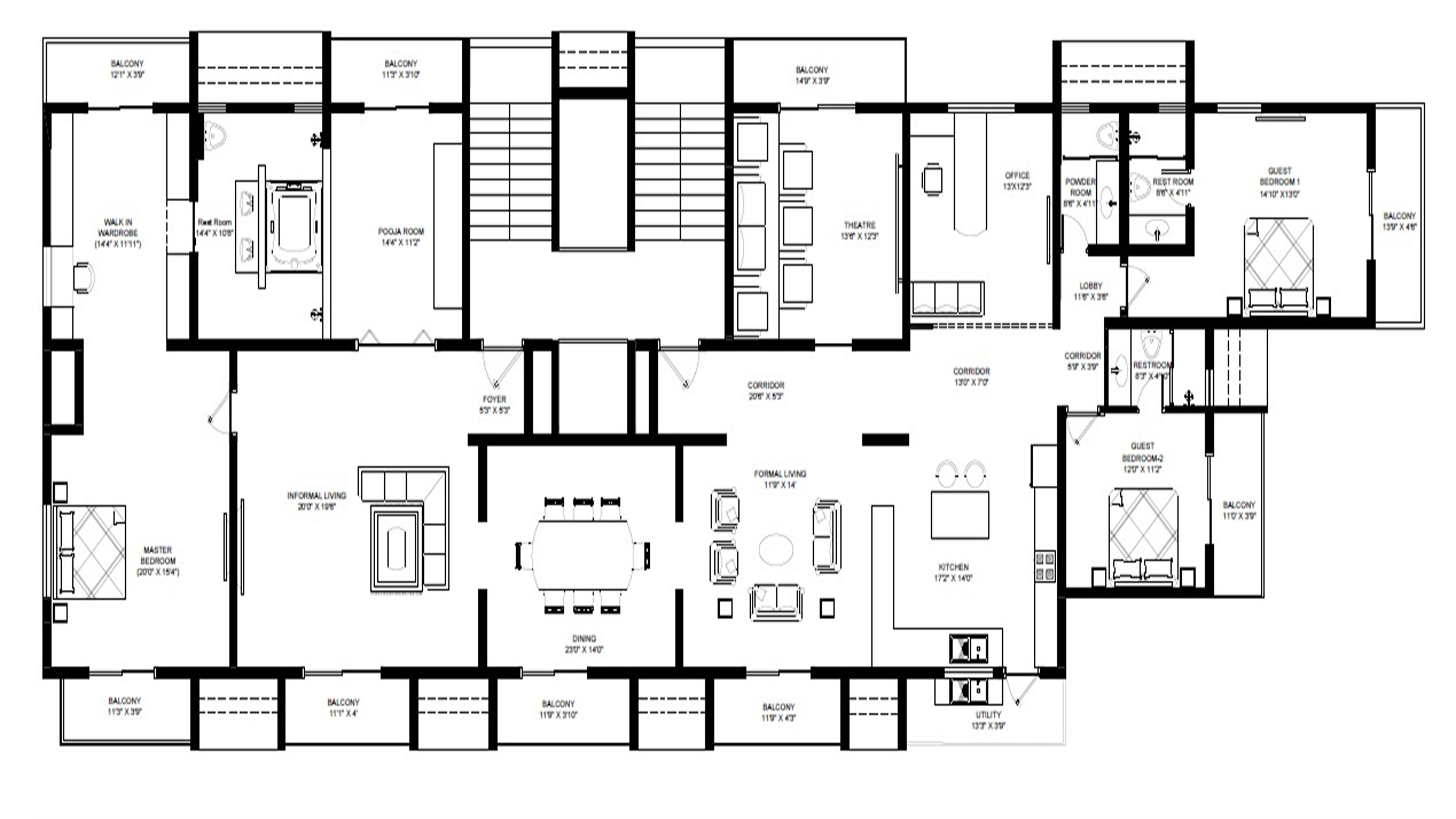
Our floor plan design services include interior and exterior floor plans

Black & White 2D Floor Plans

Black & White floor plan is a traditional way to craft, design, and label floor plans. It contains architectural design, symbols, and room labels with dimensions to identify the rooms which are clear and straightforward to understand the complete plan.

2D Floor Plan with Full Color

The use of a 2D textu#30a27a floor plan is presented in several ways such as adding colors, furniture, textures, and more detail colors to make it appear more authentic to view the rooms with its dimensions.